【売工場】2階建て39坪/工業地域に立地
new

お気に入り追加する

価格
6,830万円
工場

所在地 埼玉県朝霞市膝折町
交通 東武東上線朝霞駅
バス(膝折横町 乗20分 停歩10分)

物件概要

築年月 2001/09 面積 39.97坪
建物階数 地上2階  建物構造
敷地全体面積 173.8坪 延べ床面積
駐車場 空有 取引態様 仲介
引渡/入居時期 相談 現況 居住中
地目 山林 用途地域 工業
都市計画 市街化区域 地勢
建ぺい率 60% 容積率 200%
土地権利 所有権 接道状況
接道方向1 接道間口1
接道種別1 接道幅員1 7m
設備・条件 2階建 工業地域 駐車場
物件番号 UR-2053
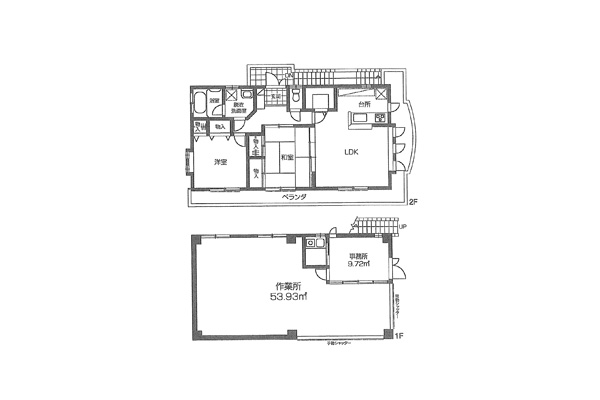
  • 2階建て39坪の売り工場
  • 工業地域に立地の売工場
  • 駐車スペースあり 前面道路7m
  • 住居2LDK付き
  • 朝霞駅よりバス
    1階工場、事務所あり(RC造)
    2階住居2LDK(木造)
    2階事務所16.8坪
    国道254号至近 外環道近く
    約3.8m通路より進入

    キーワード:朝霞駅 2階建 駐車場 事務所 住居 工業地域 R254 外環道                
                      
             
                          
            
           
          

          
       
          

    Loading...
    ※物件掲載内容と現況に相違がある場合は現況を優先と致します。