- 賃料
- 31万9,000円
- 倉庫
- 坪単価
- 0.222万円
- 敷金
- 4ヶ月
- 礼金
- 1ヶ月
|
|
|
|
| 所在地 | 埼玉県日高市高萩 |
|---|---|
| 交通 | JR川越線笠幡駅 徒歩2000m |
物件概要
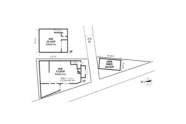
| 築年月 | 1992/04 | 面積 | 143.28坪 | ||
|---|---|---|---|---|---|
| 建物階数 | 地上2階 | 建物構造 | 鉄骨造 | ||
| 敷地全体面積 | 173.11坪 | 延べ床面積 | |||
| 駐車場 | 空有 | 取引態様 | 仲介 | ||
| 引渡/入居時期 | 相談 | 現況 | 空家 | ||
| 都市計画 | 市街化調整区域 | 地勢 | |||
| 接道種別1 | 接道幅員1 | 8m | |||
| 設備・条件 | 2階建 駐車場 | ||||
| 物件番号 | S1-2924 | ||||
笠幡駅
倉庫1階78坪、2階39坪
2階建事務所30坪
軽量シャッターW3.4m×H2.8m
キーワード:笠幡駅 2階建 事務所 駐車場 R407 圏央道
Loading...
※物件掲載内容と現況に相違がある場合は現況を優先と致します。












